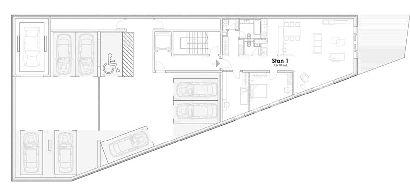
Luksuzni stanovi na Dedinju, Suteren 2

Omladinska BB, Beograd
Odaberite stan:

С1

Tip stana:
Trosoban
Površina:
154.07 m2
Suteren 2
Stan Tip stana Površina Status
С1 Trosoban 154.07 m2