Luksuzni stanovi na Dedinju, Suteren 1

Omladinska BB, Beograd
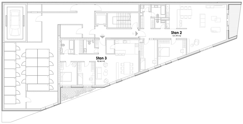
Odaberite stan:

С2

Tip stana:
Trosoban
Površina:
131.99 m2

С3

Tip stana:
Trosoban
Površina:
92.46 m2
Suteren 1
Stan Tip stana Površina Status
С2 Trosoban 131.99 m2
С3 Trosoban 92.46 m2